ID CP2834714

Apartament modern 2 camere I 102 The Address I Complet mobilat

ID CP2834714

259,900 €

Apartament cu 2 camere de vânzare
Floreasca, Bucuresti
57 mp
2020

City Nest vă prezintă spre vânzare un apartament modern cu 2 camere, amplasat la etajul 8 al ansamblului rezidențial The Address 102, în zona Barbu Văcărescu – un punct de reper pentru cei care își doresc confort urban și acces rapid către zonele de interes ale orașului.

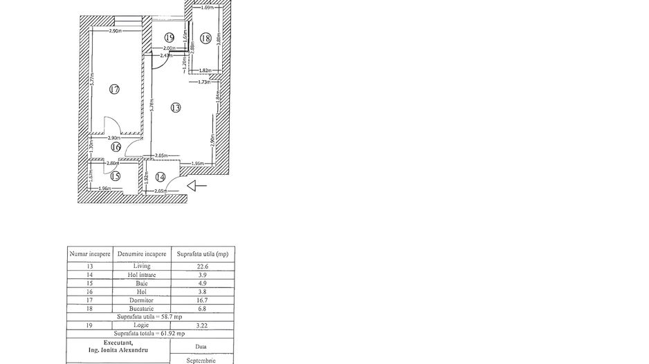
Locuința are o suprafață utilă de 59 mp, completată de o logie de 4 mp, și se remarcă prin compartimentarea semidecomandată: living cu bucătărie deschisă și acces către logie, un dormitor spațios, baie, hol și zonă de depozitare, ajungând la o suprafață totală de 63 mp.

Apartamentul este finisat cu materiale de calitate, dispune de încălzire în pardoseală cu centrală proprie, aer condiționat și mobilier Mobexpert. Se vinde complet mobilat și utilat, exact ca în imagini, fiind pregătit pentru mutare imediată.

Este potrivit atât pentru locuire, cât și pentru investiție—fie închiriere pe termen lung, fie în regim hotelier, zona având cerere ridicată.

Proprietatea include un loc de parcare în subteran, situat la nivelul -3, disponibil spre achiziție separată la prețul de 20.000 euro.

Pentru detalii suplimentare și programarea unei vizionări, ne puteți contacta oricând.

Citește mai mult

  • Tip apartament
    Apartament
  • Compartimentare
    Semidecomandat
  • Număr camere
    2
  • Dormitoare
    1
  • Număr bucătării
    1
  • Număr băi
    1
  • Etaj
    8
  • Suprafață utilă
    57 mp
  • Suprafață construită
    80 mp
  • Suprafață totală
    61 mp
  • Suprafață terasă
    4 mp
  • Disponibilitate
    Imediat
  • Confort
    1
  • Stare interior
    Finisat modern
  • Anul finisării
    2020
  • Număr balcoane
    1
  • Număr locuri parcare
    1
  • Imobil
    Bloc de apart.
  • Stadiu construcție
    Finalizată
  • An construcție
    2020
  • Construcție nouă
    Da
  • La revânzare
    Da
  • Tip construcție
    Beton
  • Număr etaje clădire
    11
  • Număr subsoluri
    3

Facilități

Acces pentru persoane cu dizabilități
Aer condiționat
Apă
Apometre
Aragaz
Bucătărie deschisă
Bucătărie mobilată
Bucătărie utilată
Cabină de duș
Canalizare
CATV
Centrală proprie
Contor căldură
Contor electric
Contor gaz
Curent
Dressing
Facilități sportive
Faianță
Ferestre aluminiu
Fitness
Frigider
Garaj subteran
Gaz
Geamuri termopan
Geamuri tripan
Gresie
Hotă
Iluminat stradal
Încălzire prin pardoseală
Interfon
Internet
Lift
Mașină de spălat rufe
Mașină de spălat vase
Mijloace de transport în comun
Mobilat complet
Parchet
Pază
Pază permanentă
Spații agrement
Străzi asfaltate
Telecomandă poartă acces auto
Telecomandă poartă garaj
Telefon
Ușă intrare metal
Vedere panoramică
Vedere spre oraș
Videointerfon
Vopsea lavabilă
Wireless
Oana Dumitrascu - City Nest
Oana Dumitrascu
Manager

+40 745 815 432


Solicită chiar acum o vizionare
Telefon
Sună acum Solicită vizionare
Necesare:

Site-ul nu poate funcționa corect fără aceste cookie-uri. Vezi cookie-urile

Statistică:

Strângem statistici anonime despre voi, vizitatorii unici, pentru a vă îmbunătăți experiența dumneavoastră. Vezi cookie-urile

Marketing:

Pentru a ne promova mai eficient serviciile noastre, folosim cookies pentru a vă identifica și a vă oferi proprietăți și servicii personalizate. Vezi cookie-urile

Acest site folosește cookies, află detalii. Alege ce tipuri de cookies dorești să permitem: