ID CP2394962

Apartament 2 camere de lux în zona Aerogarii – Imobil tip boutique

ID CP2394962

164,400 € + 21% TVA

Apartament cu 2 camere de vânzare
Baneasa, Bucuresti
68.5 mp
2025

Situat pe in zona Aviatiei/Aerogarii, acest ansamblu rezidențial boutique oferă apartamente elegante, într-un imobil S+P+4+5R cu doar 5 apartamente pe etaj, pentru o comunitate restrânsă și selectă.

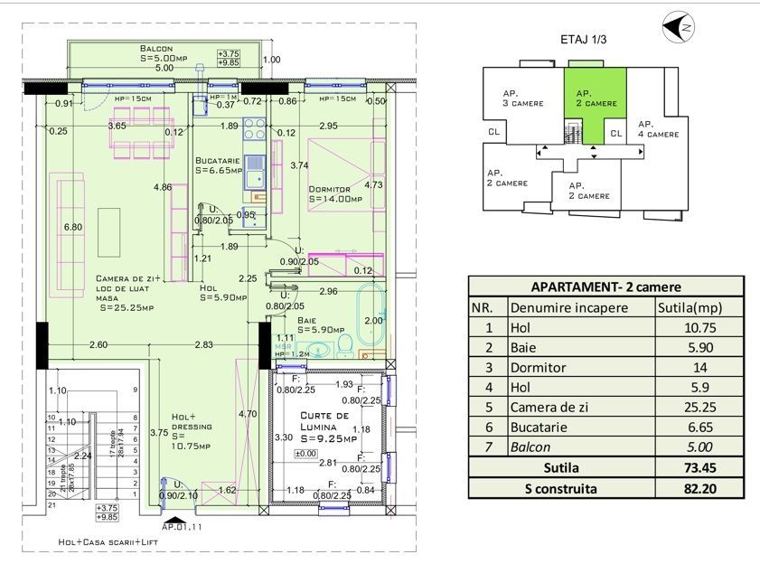
Acest apartament are o suprafata utila generoasa de 68 mp, la care se adauga un balcon de 5 mp. Inca un avantaj al acestui apartament este ca are bucataria inchisa. Este disponibil la mai multe etaje, la acelasi pret.

Descriere imobil:

Regim de înălțime: S+P+4+5 retras

Termen de finalizare: aprilie 2025

Stadiu: Fațade și instalații aproape finalizate

Finisaje Premium și Materiale de Calitate:

Construcție: Cadre de beton B400, cărămidă Porotherm Austria (exterior) și Porotherm Profi' 12 pentru compartimentări interioare

Tamplarie: Synego 7 camere, geam tripan

Încălzire: Pardoseală Tecce Germania

Instalații: Electrice Gewiss Germania

Finisaje interioare și exterioare:

Uși interioare Pinum Italia

Granit și marmură în casa scării

Glafuri din granit

Balcoane din sticlă securizată

Fațade și balcoane cu izolații suplimentare

Dotări suplimentare:

Centrală proprie Viessman pentru fiecare apartament

Lift Schindler

Video interfon cu Touch-screen

Predare:

Apartamentele se predau la cheie, cu finisaje premium, într-un buget prestabilit, conform preferințelor clienților.

Detalii financiare:

Prețurile variază în funcție de avans și modalitatea de plată.

Loc de parcare subteran disponibil la 20.000 EUR + TVA.

Prețul apartamentelor nu include TVA.

Comision 0% cumparator!

Imaginile sunt randari realizate de un designer de interior pentru ca dumneavoastra sa va puteti face o idee asupra felului in care apartamentul va arata la finalizare.

Pentru detalii suplimentare și programări vizionări:

📞 Contactați-ne acum pentru a rezerva un apartament în acest proiect exclusivist!

Citește mai mult

  • Tip apartament
    Apartament
  • Compartimentare
    Decomandat
  • Număr camere
    2
  • Dormitoare
    1
  • Număr bucătării
    1
  • Număr băi
    1
  • Geam la baie
    Da
  • Etaj
    2
  • Suprafață utilă
    68.5 mp
  • Suprafață construită
    89 mp
  • Suprafață totală
    73.5 mp
  • Disponibilitate
    Imediat
  • Confort
    Lux
  • Stare interior
    Ultrafinisat
  • Anul finisării
    2025
  • Număr balcoane
    1
  • Imobil
    Bloc de apart.
  • Stadiu construcție
    La gri
  • An construcție
    2025
  • Construcție nouă
    Da
  • Tip construcție
    Beton
  • Număr etaje clădire
    5
  • Număr etaje retrase
    1
  • Număr subsoluri
    1

Facilități

Aer condiționat
Apă
Apometre
Bucătărie închisă
Cadă
Canalizare
CATV
Centrală proprie
Contor căldură
Contor electric
Contor gaz
Curent
Dressing
Faianță
Ferestre aluminiu
Garaj subteran
Gaz
Gresie
Iluminat stradal
Încălzire prin pardoseală
Internet
Izolație exterioară
Lift
Mijloace de transport în comun
Parchet
Străzi asfaltate
Supraveghere video
Telecomandă poartă garaj
Ușă intrare metal
Vedere spre oraș
Videointerfon
Vopsea lavabilă
Oana Dumitrascu - City Nest
Oana Dumitrascu
Manager

+40 745 815 432


Solicită chiar acum o vizionare
Telefon
Sună acum Solicită vizionare
Necesare:

Site-ul nu poate funcționa corect fără aceste cookie-uri. Vezi cookie-urile

Statistică:

Strângem statistici anonime despre voi, vizitatorii unici, pentru a vă îmbunătăți experiența dumneavoastră. Vezi cookie-urile

Marketing:

Pentru a ne promova mai eficient serviciile noastre, folosim cookies pentru a vă identifica și a vă oferi proprietăți și servicii personalizate. Vezi cookie-urile

Acest site folosește cookies, află detalii. Alege ce tipuri de cookies dorești să permitem: