ID CP2393398

Apartament 3 camere spatios I Zona Aerogarii – Imobil tip boutique

ID CP2393398

265,600 € + 21% TVA

Apartament cu 3 camere de vânzare
Baneasa, Bucuresti
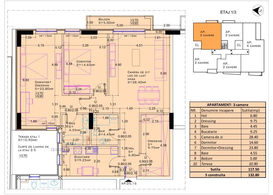
107 mp
2025

Situat într-un ansamblu rezidențial boutique din prestigioasa zonă Aviației/Aerogarii, acest apartament elegant de 107 mp utili, completat de un balcon spațios de 11 mp, oferă un spațiu generos și confortabil pentru locuire. Bucătăria închisă este un plus pentru cei care apreciază compartimentările clasice.

Caracteristici și Beneficii:

Imobil boutique: Regim de înălțime S+P+4+5R, doar 5 apartamente pe etaj, pentru o comunitate exclusivistă.

Termen de finalizare: aprilie 2025, cu stadiu actual avansat – fațade și instalații aproape finalizate.

Disponibilitate: Apartamentul este disponibil la mai multe etaje, toate la același preț.

Finisaje și Dotări Premium:

Construcție din cadre de beton B400, cărămidă Porotherm Austria și compartimentări interioare din Porotherm Profi' 12.

Tamplarie Synego 7 camere, geam tripan, pentru izolație termică și fonică superioară.

Încălzire în pardoseală Tecce Germania și instalații electrice Gewiss Germania.

Detalii elegante precum uși interioare Pinum Italia, marmură și granit în casa scării, balcoane din sticlă securizată.

Centrală proprie Viessman și lift Schindler pentru confort și eficiență energetică.

Video interfon cu touchscreen pentru siguranță sporită.

Predare:

Apartamentele se predau la cheie, personalizate conform preferințelor, în limitele unui buget prestabilit.

Detalii financiare:

Loc de parcare subteran: Disponibil la 20.000 EUR + TVA.

Prețul apartamentului: Nu include TVA.

Comision 0% cumparator!

Notă: Imaginile prezentate sunt randări și au scop informativ.

Programează o vizionare:

Acest apartament combină luxul, confortul și localizarea perfectă. Contactați-ne acum pentru detalii suplimentare și programări!

Citește mai mult

  • Tip apartament
    Apartament
  • Compartimentare
    Decomandat
  • Număr camere
    3
  • Dormitoare
    2
  • Număr bucătării
    1
  • Număr băi
    2
  • Geam la baie
    Da
  • Etaj
    2
  • Suprafață utilă
    107 mp
  • Suprafață construită
    130 mp
  • Suprafață totală
    118 mp
  • Suprafață terasă
    11 mp
  • Disponibilitate
    Imediat
  • Confort
    Lux
  • Stare interior
    Ultrafinisat
  • Anul finisării
    2025
  • Număr terase
    1
  • Imobil
    Bloc de apart.
  • Stadiu construcție
    La gri
  • An construcție
    2025
  • Construcție nouă
    Da
  • Tip construcție
    Beton
  • Număr etaje clădire
    5
  • Număr etaje retrase
    1
  • Număr subsoluri
    1

Facilități

Aer condiționat
Apă
Apometre
Bucătărie închisă
Cabină de duș
Cadă
Canalizare
CATV
Centrală proprie
Contor căldură
Contor electric
Contor gaz
Curent
Dressing
Faianță
Ferestre aluminiu
Garaj subteran
Gaz
Gresie
Iluminat stradal
Încălzire prin pardoseală
Internet
Izolație exterioară
Lift
Mijloace de transport în comun
Parchet
Pază
Străzi asfaltate
Supraveghere video
Telecomandă poartă garaj
Ușă intrare metal
Vedere spre oraș
Videointerfon
Vopsea lavabilă
Cristina - - City Nest
Cristina -
Manager

+40765467771


Solicită chiar acum o vizionare
Telefon
Sună acum Solicită vizionare
Necesare:

Site-ul nu poate funcționa corect fără aceste cookie-uri. Vezi cookie-urile

Statistică:

Strângem statistici anonime despre voi, vizitatorii unici, pentru a vă îmbunătăți experiența dumneavoastră. Vezi cookie-urile

Marketing:

Pentru a ne promova mai eficient serviciile noastre, folosim cookies pentru a vă identifica și a vă oferi proprietăți și servicii personalizate. Vezi cookie-urile

Acest site folosește cookies, află detalii. Alege ce tipuri de cookies dorești să permitem: