ID CP2315371

Apartament modern 3 camere I Imobil nou I Pozitie ultracentrala

ID CP2315371

269,900 € + 21% TVA

Apartament cu 3 camere de vânzare
Ultracentral, Bucuresti
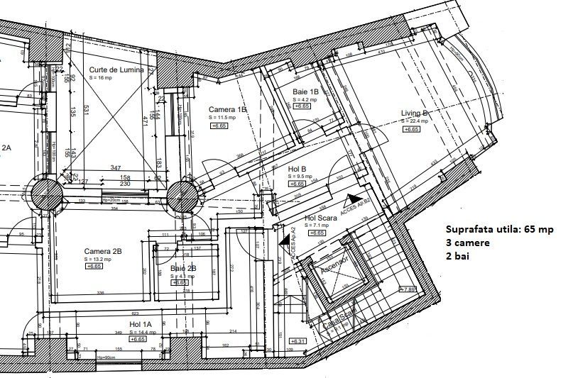
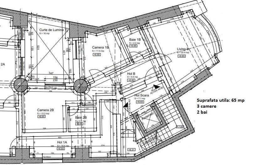
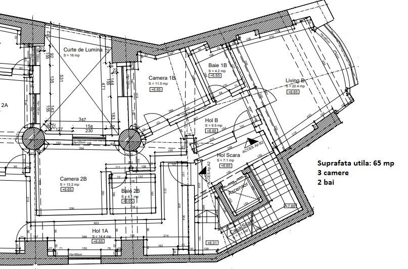
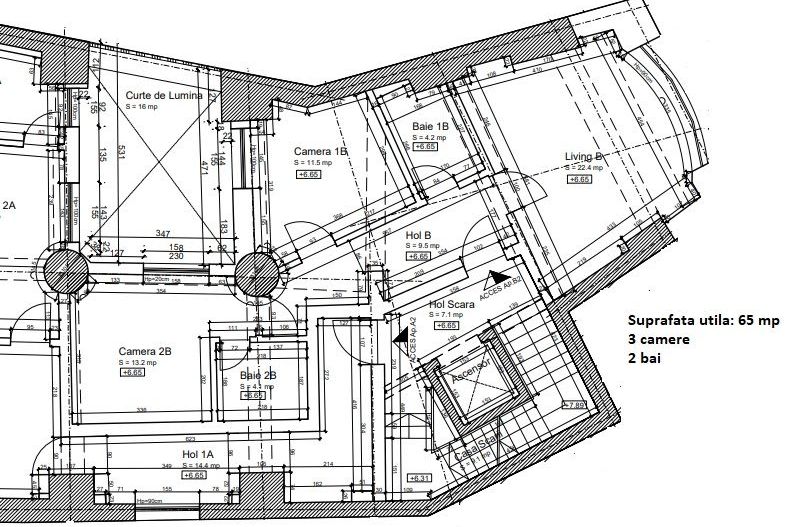
65 mp
2024

Oferim spre vânzare un apartament modern cu 3 camere, situat într-o zonă centrală și exclusivistă a Bucureștiului, aproape de Piața Rosetti. Cu o suprafață utilă de 65 mp, acest apartament este ideal pentru cei care caută un spațiu de locuit confortabil și elegant, într-o locație de top, cu acces rapid la principalele puncte de interes din Capitală.

Locația:

Zona centrală în care se află acest apartament oferă un stil de viață urban deosebit, fiind la câțiva pași de zonele istorice și culturale ale orașului, cu acces facil la restaurante, cafenele, magazine, parcuri și centre de afaceri. Proximitatea față de Piața Rosetti vă pune la îndemână numeroase mijloace de transport în comun, inclusiv stații de metrou, autobuz și tramvai, facilitând deplasările rapide în orice parte a orașului. De asemenea, este aproape de bulevardele mari precum Calea Moșilor și Bulevardul Carol, care oferă o varietate de facilități și servicii.

Apartamentul:

Apartamentul este momentan în stadiul de „alb” și se va preda la cheie, cu finisaje premium, la finalul acestui an. Acesta beneficiază de o compartimentare versatilă, ceea ce oferă viitorului proprietar posibilitatea de a transforma apartamentul dintr-o locuință cu 3 camere într-una cu 2 camere, în funcție de preferințele personale și nevoile de spațiu. Această flexibilitate face apartamentul potrivit atât pentru familii, cât și pentru cei care doresc un spațiu de locuit mai generos.

Avantajele zonei:

Locația acestui apartament este una dintre cele mai apreciate din centrul Bucureștiului, fiind în apropierea unor repere importante precum Piața Universității, Bulevardul Magheru, dar și la o distanță accesibilă de parcuri precum Parcul Cișmigiu sau Grădina Icoanei. De asemenea, zona este recunoscută pentru clădirile sale istorice și atmosfera sa culturală unică, fiind o destinație ideală pentru cei care apreciază combinația dintre istorie și modernitate.

Posibilități de personalizare:

Deși apartamentul este momentan în stadiul de „alb”, la predare se va preda cu toate finisajele premium incluse, conform specificațiilor. Viitorul proprietar are posibilitatea de a personaliza anumite aspecte ale finisajelor interioare, pentru a crea un spațiu care să reflecte pe deplin preferințele și stilul său de viață.

Concluzie:

Acest apartament modern, situat într-o locație centrală și prestigioasă a Bucureștiului, oferă tot confortul și eleganța unei locuințe premium. Cu finisaje de calitate superioară și dotări moderne, este o alegere excelentă pentru cei care își doresc un stil de viață urban, cu acces rapid la toate facilitățile esențiale ale orașului. Transformabil în 2 camere sau păstrat în configurația actuală de 3 camere, acest apartament reprezintă o investiție excelentă într-o zonă cu valoare imobiliară ridicată.

Pretul apartamentului nu include TVA. Se poate achizitiona si pe societate in regimul de taxare inversa.

Pentru mai multe informații sau pentru programarea unei vizionări, nu ezitați să ne contactați!

Citește mai mult

  • Tip apartament
    Apartament
  • Compartimentare
    Decomandat
  • Număr camere
    3
  • Dormitoare
    2
  • Număr bucătării
    1
  • Număr băi
    2
  • Geam la baie
    Da
  • Etaj
    2
  • Suprafață utilă
    65 mp
  • Suprafață construită
    80 mp
  • Suprafață totală
    65 mp
  • Disponibilitate
    Imediat
  • Orientare
    Est
  • Confort
    Lux
  • Stare interior
    Finisat modern
  • Anul finisării
    2024
  • Imobil
    Bloc de apart.
  • Stadiu construcție
    Semifinisat
  • An construcție
    2024
  • Construcție nouă
    Da
  • Tip construcție
    Beton
  • Număr etaje clădire
    7
  • Număr etaje retrase
    1
  • Număr subsoluri
    1

Facilități

Aer condiționat
Apă
Apometre
Bucătărie deschisă
Cabină de duș
Canalizare
CATV
Centrală proprie
Contor căldură
Contor electric
Contor gaz
Curent
Dressing
Faianță
Garaj subteran
Gaz
Gresie
Iluminat stradal
Încălzire prin pardoseală
Internet
Mijloace de transport în comun
Parchet
Străzi asfaltate
Supraveghere video
Telecomandă poartă garaj
Telefon
Ușă intrare metal
Uși interior lemn
Vedere spre oraș
Videointerfon
Vopsea lavabilă
Wireless
Cristina - - City Nest
Cristina -
Manager

+40765467771


Solicită chiar acum o vizionare
Telefon
Sună acum Solicită vizionare
Necesare:

Site-ul nu poate funcționa corect fără aceste cookie-uri. Vezi cookie-urile

Statistică:

Strângem statistici anonime despre voi, vizitatorii unici, pentru a vă îmbunătăți experiența dumneavoastră. Vezi cookie-urile

Marketing:

Pentru a ne promova mai eficient serviciile noastre, folosim cookies pentru a vă identifica și a vă oferi proprietăți și servicii personalizate. Vezi cookie-urile

Acest site folosește cookies, află detalii. Alege ce tipuri de cookies dorești să permitem: