ID CP2431365

Apartament 4 camere spatios I Zona Baneasa / Aerogarii – Imobil nou

ID CP2431365

359,900 € + 21% TVA

Apartament cu 4 camere de vânzare
Baneasa, Bucuresti
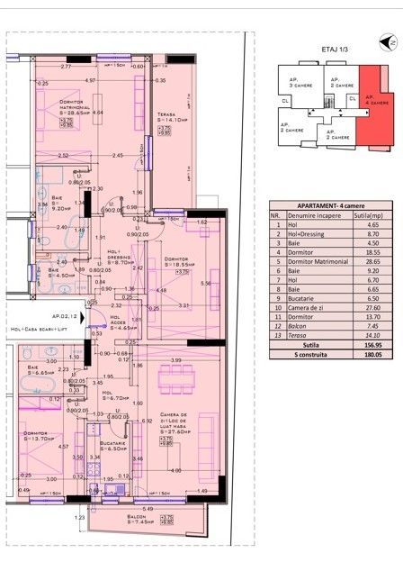
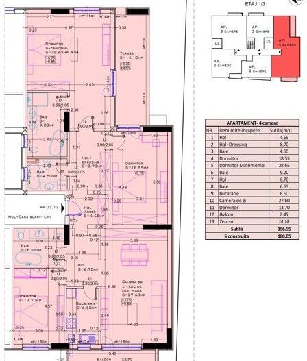
136 mp
2025

Descoperiți acest apartament spațios de 136 mp utili, completat de două terase însumând 22 mp, situat într-un ansamblu rezidențial boutique din prestigioasa zonă Aviației/Aerogarii. Conceput pentru confort și eleganță, acest apartament este ideal pentru familii sau pentru cei care apreciază un stil de viață sofisticat.

Caracteristici și Beneficii:

Imobil boutique: Regim de înălțime S+P+4+5R, cu doar 5 apartamente pe etaj, pentru o comunitate restrânsă și exclusivistă.

Termen de finalizare: aprilie 2025, cu lucrări avansate – fațade și instalații aproape finalizate.

Disponibilitate: Apartamentul este disponibil la mai multe etaje, toate la același preț.

Finisaje și Dotări Premium:

Structură: Cadre de beton B400, cărămidă Porotherm Austria pentru exterior și Porotherm Profi' 12 pentru compartimentări interioare.

Izolație și tâmplărie: Tamplarie Synego 7 camere, geam tripan pentru eficiență termică și fonică.

Confort termic: Încălzire în pardoseală Tecce Germania și centrală proprie Viessman.

Detalii elegante: Uși interioare Pinum Italia, marmură și granit în casa scării, balcoane din sticlă securizată.

Dotări moderne: Lift Schindler, video interfon cu touchscreen, glafuri din granit.

Predare:

Apartamentele se predau la cheie, personalizate conform preferințelor cumpărătorului, în limitele unui buget prestabilit.

Detalii financiare:

Loc de parcare subteran: Disponibil la 20.000 EUR + TVA.

Prețul apartamentului: Nu include TVA.

Notă: Imaginile sunt randări realizate de un designer de interior, având scop informativ.

Programează o vizionare:

Acest apartament combină luxul, spațiul generos și o locație exclusivistă. Contactați-ne acum pentru mai multe detalii și programări!

Citește mai mult

  • Tip apartament
    Apartament
  • Compartimentare
    Decomandat
  • Număr camere
    4
  • Dormitoare
    3
  • Număr bucătării
    1
  • Număr băi
    3
  • Geam la baie
    Da
  • Etaj
    2
  • Suprafață utilă
    136 mp
  • Suprafață construită
    180 mp
  • Suprafață totală
    158 mp
  • Suprafață terasă
    22 mp
  • Disponibilitate
    Imediat
  • Confort
    Lux
  • Stare interior
    Ultrafinisat
  • Anul finisării
    2025
  • Număr terase
    2
  • Imobil
    Bloc de apart.
  • Stadiu construcție
    La gri
  • An construcție
    2025
  • Construcție nouă
    Da
  • Tip construcție
    Beton
  • Număr etaje clădire
    5
  • Număr etaje retrase
    1
  • Număr subsoluri
    1

Facilități

Aer condiționat
Apă
Apometre
Bucătărie închisă
Cabină de duș
Cadă
Canalizare
CATV
Centrală proprie
Contor căldură
Contor electric
Contor gaz
Curent
Dressing
Faianță
Ferestre aluminiu
Garaj subteran
Gaz
Gresie
Iluminat stradal
Încălzire prin pardoseală
Internet
Izolație exterioară
Lift
Mijloace de transport în comun
Parchet
Pază
Străzi asfaltate
Supraveghere video
Telecomandă poartă garaj
Ușă intrare metal
Vedere spre oraș
Videointerfon
Vopsea lavabilă
Oana Dumitrascu - City Nest
Oana Dumitrascu
Manager

+40 745 815 432


Solicită chiar acum o vizionare
Telefon
Sună acum Solicită vizionare
Necesare:

Site-ul nu poate funcționa corect fără aceste cookie-uri. Vezi cookie-urile

Statistică:

Strângem statistici anonime despre voi, vizitatorii unici, pentru a vă îmbunătăți experiența dumneavoastră. Vezi cookie-urile

Marketing:

Pentru a ne promova mai eficient serviciile noastre, folosim cookies pentru a vă identifica și a vă oferi proprietăți și servicii personalizate. Vezi cookie-urile

Acest site folosește cookies, află detalii. Alege ce tipuri de cookies dorești să permitem: