ID CP2275392

Penthouse high end cu terasă rooftop și piscină I One Floreasca Towers

ID CP2275392

3,139,900 € (negociabil) + 21% TVA

Apartament cu 5 camere de vânzare
Floreasca, Bucuresti
325 mp
2025

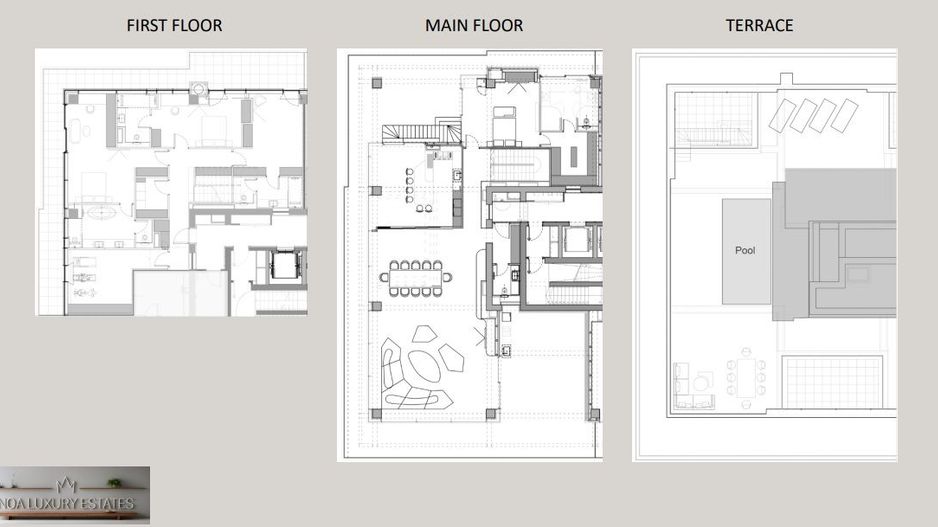
Descoperiți acest penthouse tip duplex spectaculos, întins pe două etaje, cu o suprafață desfășurată de 450 mp, la care se adaugă terasele generoase de la etajele 14 și 15, precum și o oază de liniște pe terasa rooftop de 150 mp, dotată cu piscină privată. Situat într-un ansamblu rezidențial de lux aflat în construcție, termenul de finalizare este septembrie 2025.

Imaginile prezentate sunt randări realizate de arhitecți și designeri de interior, care pot fi implementate. Apartamentul vine nefinisat, oferind oportunitatea unică de a personaliza spațiul în funcție de preferințele dumneavoastră. Gresia, faianța, parchetul și obiectele sanitare nu sunt incluse în preț, pentru a vă permite să alegeți materialele dorite. De asemenea, se pot face modificări la compartimentarea interioară.

Unul dintre cele mai impresionante aspecte ale acestui penthouse este vederea panoramică neobturată asupra orașului, oferind un spectacol vizual impresionant din orice colț al apartamentului. Amplasarea ansamblului rezidențial în inima zonei Floreasca asigură acces rapid la toate facilitățile esențiale.

Viziunea designerului:

Proiectul pune accent pe armonia spațială, combinând proporții echilibrate și materiale luxoase pentru a crea un mediu de locuit rafinat și confortabil. Zona de zi, cu înălțimea generoasă și layout-ul deschis, este decorată cu mobilier din catifea și corpuri de iluminat geometrice. Zona de dining este dominată de o masă monolitică din marmură, în timp ce un corp de iluminat suspendat adaugă un ritm vertical subtil între spații. Dormitorul matrimonial și baia oferă eleganță și serenitate, fiind amenajate cu lambriuri din lemn și accente subtile de aur.

În prețul listat sunt incluse 3 locuri de parcare și o boxă.

Contactați-ne pentru detalii suplimentare și pentru a programa o vizionare!

Citește mai mult

  • Tip apartament
    Penthouse
  • Compartimentare
    Decomandat
  • Număr camere
    5
  • Dormitoare
    4
  • Număr bucătării
    1
  • Număr băi
    5
  • Etaj
    14, 15
  • Suprafață utilă
    325 mp
  • Suprafață construită
    450 mp
  • Suprafață totală
    450 mp
  • Suprafață terasă
    250 mp
  • Disponibilitate
    Imediat
  • Confort
    Lux
  • Stare interior
    Semifinisat
  • Anul finisării
    2025
  • Număr balcoane
    2
  • Număr terase
    3
  • Număr locuri parcare
    3
  • Imobil
    Bloc de apart.
  • Stadiu construcție
    În construcție
  • An construcție
    2025
  • Construcție nouă
    Da
  • Tip construcție
    Beton
  • Număr etaje clădire
    15
  • Număr subsoluri
    2

Facilități

Acces pentru persoane cu dizabilități
Aer condiționat
Apă
Apometre
Bucătărie deschisă
Bucătărie închisă
Cabină de duș
Cadă
Canalizare
CATV
Centrală imobil
Contor căldură
Contor electric
Contor gaz
Curent
Dressing
Facilități sportive
Ferestre aluminiu
Fitness
Garaj subteran
Gaz
Iluminat stradal
Încălzire prin pardoseală
Internet
Mijloace de transport în comun
Pază
Pază permanentă
Piscină exterioară
Spații agrement
Străzi asfaltate
Supraveghere video
Telecomandă poartă garaj
Telefon
Vedere panoramică
Vedere spre oraș
Videointerfon
Cristina - - City Nest
Cristina -
Manager

+40765467771


Solicită chiar acum o vizionare
Telefon
Sună acum Solicită vizionare
Necesare:

Site-ul nu poate funcționa corect fără aceste cookie-uri. Vezi cookie-urile

Statistică:

Strângem statistici anonime despre voi, vizitatorii unici, pentru a vă îmbunătăți experiența dumneavoastră. Vezi cookie-urile

Marketing:

Pentru a ne promova mai eficient serviciile noastre, folosim cookies pentru a vă identifica și a vă oferi proprietăți și servicii personalizate. Vezi cookie-urile

Acest site folosește cookies, află detalii. Alege ce tipuri de cookies dorești să permitem: